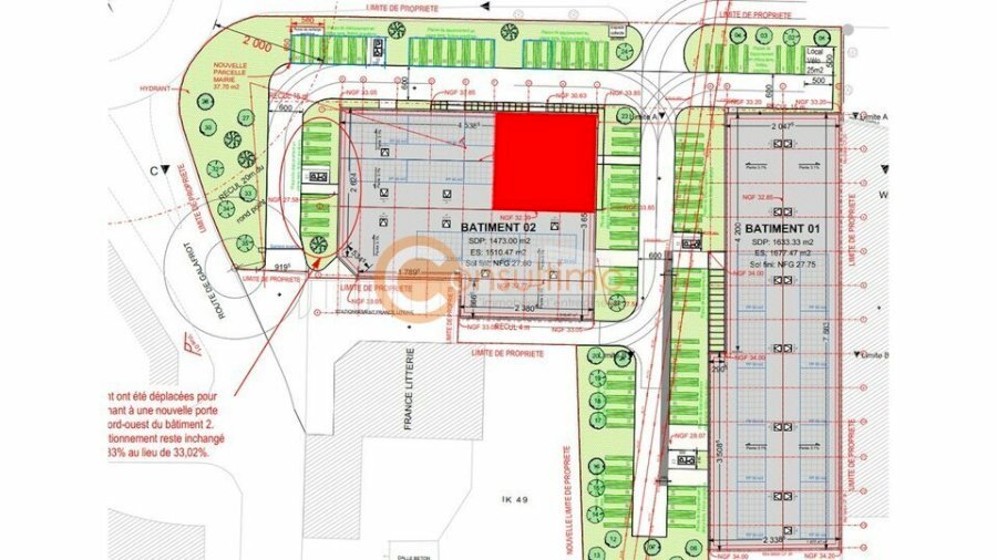
Local commercial à acheter 310 m²
Situé en première ligne de l'avenue François MITTERRAND, en face du McDonald's, l'agence CONSULTIMO vous propose A LA VENTE un local commercial NEUF livré brut de béton et fluide en attente d'une surface totale de 310m². Situé en plein coeur de la zone commerciale et à seulement 3 minutes du Leclerc, ce local bénéficie d'une excellente visibilité et d'un accès aisé. Idéal pour tous commerces, ce projet offre un large panel d'éventualité et une grande flexibilité d'aménagement pour répondre parfaitement à vos besoins spécifiques. Disponible immédiatement.
Le prix de vente net vendeur est de 573.500 Euros HT auquel s'ajoutent des honoraires de commercialisation à la charge de l'acquéreur d'un montant de 30.000 Euros HT. Les frais de notaires sont réduits car le bâtiment est neuf !
Nous pouvons vous accompagner dans l'aménagement intérieur de vos locaux.
Accueil téléphonique du lundi au samedi de 8h30 à 19h00.
#RV

Contacter