Immeuble OSMIUM CARBON-BLANC
Locaux d'activités, commerces et Bureaux neufs à acheter ou louer
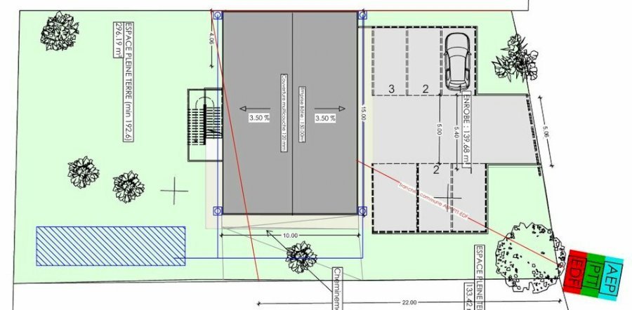
Immeuble ADENIUM ARTIGUES-PRES-BORDEAUX
Bureaux et locaux d'activités neufs à acheter ou louer
Location local commercial
Voir les 10 propositions sur la carte2 000 € HT/Mois
La Teste-de-Buch
Type : Local commercial
Superficie : 240 m²
Au coeur de la zone industrielle et commerciale de La Teste de Buch et sur un site multi-activités dynamique, l'agence Consultimo vous propose à la location un local commercial d'une surface de 240 m²...
Consultez l'annonce
6 888 € HT/Mois
Camblanes-et-Meynac
Type : Local commercial
Superficie : 435 m²
En EXCLUSIVITE, l'agence CONSULTIMO vous propose à la LOCATION un LOCAL COMMERCIAL composé de plusieurs vitrines en façade et bénéficiant d'une excellente visibilité sur la route de Camblanes et Meyna...
Consultez l'annonce
3 100 € HT/Mois
Carbon-Blanc
Type : Local commercial
Superficie : 245 m²
L'agence CONSULTIMO vous propose en exclusivité à l'entrée de ville de CARBON-BLANC (rive droite bordelaise), en première ligne de l'avenue de Bordeaux, un local commercial neuf d'une surface globale...
Consultez l'annonce
1 500 € HT/Mois
Carbon-Blanc
Type : Local commercial
Superficie : 104 m²
L'agence CONSULTIMO vous propose en exclusivité à l'entrée de ville de CARBON-BLANC (rive droite bordelaise), en première ligne de l'avenue de Bordeaux, un local commercial neuf d'une surface globale...
Consultez l'annonce
980 € HT/Mois
Carbon-Blanc
Type : Local commercial
Superficie : 78 m²
L'agence Consultimo vous propose en exclusivité à la location, un local commercial premium situé à l'entrée de ville de CARBON-BLANC (rive droite de BORDEAUX) et en première ligne d'un axe passant et...
Consultez l'annonce
3 990 € HT/Mois
Saint-Jean-d'Illac
Type : Local commercial
Superficie : 266 m²
Situé sur l'avenue de Bordeaux, en face du McDonald's, CONSULTIMO vous propose un futur local commercial brut de béton et fluide en attente, d'une surface totale de 266m², implanté dans une zone dynam...
Consultez l'annonce
1 429 € HT/Mois
Artigues-près-Bordeaux
Type : Local commercial
Superficie : 80 m²
Rocade sortie 25 - L'agence Consultimo vous propose à la location un local commercial/bureaux d'une superficie de 80 m² bénéficiant d'une excellente visibilité sur l'avenue Virecourt à Artigues. Le lo...
Consultez l'annonce
1 700 € HT/Mois
Carbon-Blanc
Type : Local commercial
Superficie : 138 m²
L'agence Consultimo vous propose en exclusivité un commerce à louer situé à l'entrée de ville de CARBON-BLANC (rive droite de BORDEAUX) et en première ligne d'un axe passant et bénéficiant d'une excel...
Consultez l'annonce
1 667 € HT/Mois
Bordeaux
Type : Local commercial
Superficie : 100 m²
QUAI HUBERT PROM - L'agence Consultimo vous propose à la location un local neuf partiellement aménagé en configuration open-space (cloisons périphérique, sol, luminaire...). Les travaux d'aménagement...
Consultez l'annonce
1 417 € HT/Mois
Bordeaux
Type : Local commercial
Superficie : 85 m²
QUAI HUBERT PROM - L'agence Consultimo vous propose à la location un local neuf partiellement aménagé en configuration open-space (cloisons périphérique, sol, luminaire...). Les travaux d'aménagement...
Consultez l'annonce
