Local commercial à louer 70 m²
33260 La Teste-de-Buch
Descriptif
Numéro d’annonce
3700
Type
Local commercial
Superficie
70 m²
Ville
La Teste-de-Buch
Département
Gironde
Région
Nouvelle-Aquitaine
Prix
1 250
€ HT/Mois
Compléments d'informations
L'agence Consultimo vous propose en exclusivité à la location des locaux commerciaux en RDC et bureaux en R+1 idéalement situé Boulevard Curepipe, en face du port et à 3 minutes à pied de la gare de La Teste de Buch.
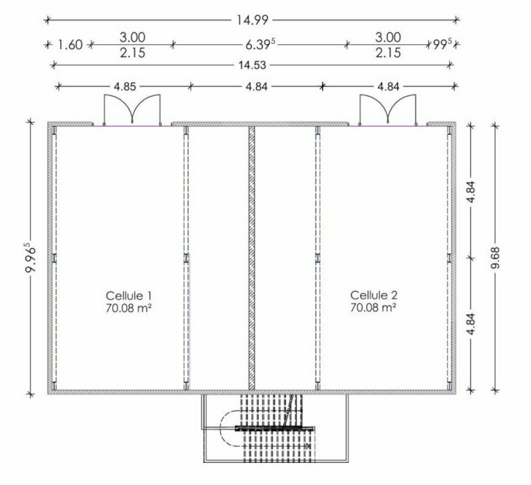
Le RDC totalise 140 m² de surface commerciale divisible à partir de 70 m². Chaque lot bénéficie d'une vitrine avec entrée indépendante. Les prestations de livraison sont les suivantes : luminaire, faux plafond, cloisons périphériques, un wc + point d'eau, prises périphériques avec RJ, dalle brute avec bouche pore
Conditions financières pour un lot de 70m²
- Loyer mensuel HT/HC : 1.250 Euros
- Provision sur charges HT : 50 Euros/mois
- Provision taxe foncière : Pas de taxe foncière sur la première année + provision de 60 Euros HT/mois
- Dépôt de garantie : 2 mois de loyer
- Paiement mensuel et d'avance
- Honoraire de commercialisation : 3.750 Euros HT à la charge du Preneur
Disponible 12 mois après accord.
Accueil téléphonique du lundi au samedi de 8h à 19h. #RV
Localisation
PRODUITS SIMILAIRES À CE BIEN
LES CLIENTS AYANT VU CETTE ANNONCE ONT ÉGALEMENT CONSULTÉ CES BIENS

Contacter